Торфянка (парк)
| Парк «Торфянка» | |
|---|---|
![]() Скульптура лося в парке «Торфянка» | |
| Основная информация | |
| Площадь | 16,6[1] га |
| Расположение | |
| 55°52′30″ с. ш. 37°41′04″ в. д. | |
| Страна | |
| Город | Москва |
| Район города | Лосиноостровский район |
| Исторический район | Осташковский проезд, владение 4[1] |
| Метро | |
«Торфя́нка» — парк, расположенный в Лосиноостровском районе Северо-Восточного административного округа города Москвы[2]. Также используются названия «парк на Изумрудной улице»[1] и «сквер на Изумрудной улице»[3][4].
Летом 2015 года парк «Торфянка» стал ареной противостояния, вызванного строительством православного храма. Несмотря на договорённость о переносе места строительства храма и выделение двух новых участков в Лосиноостровском районе, представители ФХУ РПЦ МП по состоянию на август 2018 года отказывались освободить площадку в парке[5]. На общественных слушаниях 2016 года изменение проекта межевания, предусматривающее в том числе строительство дороги по юго-западной окраине парка, встретило резкую критику жителей и собственников жилья. Несмотря на это, окружная комиссия рекомендовала одобрить проект с учетом предложений и замечаний[6].
По информации на февраль 2018 года, на территории парка запланирована масштабная реконструкция[7]. Представленный на обсуждение проект породил в апреле 2018 года новую волну критики, предметом которой стало присутствие в нём поклонного креста[8].
Название парка «Торфянка» стало именем нарицательным, обозначающим конфликт[4].
Основные сведения
Парк «Торфянка» находится между Изумрудной улицей и улицей Лётчика Бабушкина. При этом он равноудалён от станции метро Бабушкинская и станции Лосиноостровская. Расстояние составляет 1 400 метров[2]. Площадь парка равна 16,6 гектара[прим. 1].
Территорию парка пересекают Напрудные улицы, 1-я и 2-я. В пределах парка они выглядят как парковые дорожки[9].
Своим неофициальным названием парк обязан распространённым в этой местности торфяным почвам, они же дали название и расположенному в парке пруду[2] (см. ниже).
В официальных документах московского правительства парк именуется иным образом[прим. 1], его официальный адрес — Осташковский проезд, владение 4[1].
В парке имеются детские площадки. Кафе и аттракционы на территории парка отсутствуют[2]. Весной и в летнее время в парке много цветов[10]. Большое число хвойных деревьев позволяет поддерживать чистоту воздуха[11], а сохранившиеся в парке яблоневые сады напоминают о дачном прошлом Лосиноостровского района[12]. Парк подходит для прогулок с детьми и для любителей живой природы. На территории парка осуществляется выгул собак[2].
В зимнее время парк используется лыжниками (по нему проходит круговая лыжня)[2][10].
Пруд Торфянка
В центре парка «Торфянка» находится пруд Торфянка[2][11][13], названный так по торфяным почвам[2] (иное название — Гагаринский пруд[13][14]). Его площадь составляет 1,4 гектара при средней глубине 2,5 метра и объёме воды 35 000 кубометров[11][13][14]. Пруд входит в бассейн реки Ички[13][14]. На пруду обитают утки, а на берегах пруда можно встретить рыбаков. Удить рыбу в пруду Торфянка удобно с трёх небольших причалов[11]. В 2008—2009 годах его берега отремонтировали и выложили камнем[14].
Купание в пруду Торфянка, как и на всей территории СВАО, запрещено[15].
В 2018 году на пруду планируется установить домики для водоплавающих птиц[16].
Памятник
На территории парка ранее находился памятник воинам, погибшим в Афганистане и на Северном Кавказе[17], который перенесён в сквер на Оборонной улице.
Прочее
В парке на берегу пруда расположено обветшавшее здание фабрики, за стенами которой в 1960-х годах началась карьера знаменитого российского модельера Вячеслава Зайцева, в ту пору молодого руководителя экспериментального отдела. Именно здесь в 1963 году состоялся показ разработанной им коллекции одежды для работников сельского хозяйства: ярких телогреек, юбок из расписных платков и валенок[18].
Официальный статус
| № | Именование | Площадь | Режим регулирования градостроительной деятельности |
|---|---|---|---|
| 65 | Парк на Изумрудной улице | ||
| 65а | Территория храмового комплекса на Осташковском проезде | ||
В документах московского правительства используется следующее именование парка — объект природного комплекса № 65 Северо-Восточного административного округа города Москвы «Парк на Изумрудной улице»[1].
Правовой статус территорий парка установлен Постановлением Правительства Москвы от 30 апреля 2013 года за подписью С. С. Собянина, которым из природного комплекса № 65 Северо-Восточного административного округа был выделен природный комплекс № 65а того же округа[1]. Таким образом, изначальная (до выделения территории храмового комплекса) площадь парка составляет 16,6 га (см. таблицу).
Территория храмового комплекса
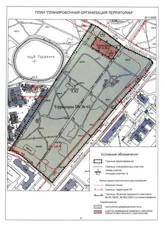
Согласно тому же постановлению, на выделенной из площади парка территории в 0,2 га предусмотрены следующие параметры объектов капитального строительства: общая площадь объекта — 1 164 м2; высота здания — 30 м; вместимость — 300 прихожан[1].
Срок, на который православной общине был предоставлен земельный участок в парке, закончился, согласно договору безвозмездного срочного пользования, 28 августа 2016 года. Однако этот договор является действующим согласно Гражданскому кодексу РФ[19].
Комментируя ситуацию, в августе 2016 года глава Финансово-хозяйственного управления Русской церкви митрополит Рязанский и Михайловский Марк сообщил, что «на сегодняшний день отсутствуют правовые основания отказа от „Торфянки“». Своё суждение он обосновал тем, что указанный договор не расторгнут, а вопрос строительства капитального храма на новой площадке не решён окончательно[19]. По состоянию на июнь 2017 года, по словам митрополита Марка, ситуация не разъяснилась: «пока нет полной ясности, можно ли там возвести храм»[20].
Согласно обнародованной в ноябре 2017 года информации, участок должен быть освобождён, как только подрядной строительной организации будет выдано разрешение на возведение храма по адресу Анадырский проезд, 8; вопрос увязан с разработкой проектной документации, которая которая должна была появиться в первой декаде ноября[21], однако по состоянию на январь 2018 года ситуация не разрешилась[22].
Конфликт
.png)
Парк «Торфянка» стал ареной противостояния, вызванного строительством православного храма. Конфликт районного масштаба смог выйти в первые ряды новостей и приобрёл общемосковский характер[23]. Под храмовый комплекс выделен участок площадью 0,2 гектара[24][1] (20 соток), что составляет 1,2 % площади парка[прим. 2].
2015 год
Развернувшееся в июне 2015 года противостояние противников и сторонников строительства храма в парке «Торфянка» привлекло личное внимание Патриарха Кирилла и его обращение к вовлечённым сторонам с призывом «к отказу от конфронтации»[23]. При этом он признал необходимым «дождаться судебного решения» и выразил надежду все существующие разногласия преодолеть в правовом поле[25].
Местные жители вошли как в ряды сторонников, так и в ряды противников строительства храма[24].
В указанных событиях в рядах сторонников строительства приняли активное участие представители православного движения «Сорок сороков»[23][24][26].
31 июля 2015 года Бабушкинский районный суд города Москвы удовлетворил ходатайство противников строительства храма в парке «Торфянка», которые отозвали свой иск с требованием отменить результаты публичных слушаний 2012 года[27][28]. В тот же день диакон Александр Волков, пресс-секретарь Патриарха, отозвался на решение суда сообщением о готовности Московской городской епархии «рассмотреть возможность строительства в другом месте — в том же микрорайоне, в пределах шаговой доступности»[29].
4 августа 2015 года депутаты Лосиноостровского муниципального округа Москвы предложили его жителям письменно высказать своё мнение по строительству храма в парке «Торфянка»[30], а в начале сентября 2015 года Интерфакс сообщил о голосовании в рамках интернет-проекта «Активный гражданин». Выбор шёл среди трёх площадок: около железнодорожной станции Лосиноостровская (по Анадырскому проезду), на участке по адресу улица Летчика Бабушкина, дом 42 и около супермаркета по адресу Изумрудная улица, дом 3[31].
Результаты голосования стали известны в октябре 2015 года: большинство голосов было отдано за первый вариант. В свою очередь, градостроительно-земельная комиссия Москвы согласилась с решением выделить новый земельный участок под храмовое строительство по адресу: Анадырский проезд, владение 8[32].
2016 год
Действуя в соответствии с решениями Градостроительно-земельной комиссии города Москвы, Департамент городского имущества города Москвы оформил договор от 01.02.2016 за № М-02-608804 сроком на девять лет, предусматривающий безвозмездное пользование земельным участком с кадастровым номером 77:02:0016009:1934 (1 участок), на котором был возведён временный быстровозводимый храм-часовня, освящённый 28 апреля 2016 года[33].
14 ноября сотрудники полиции пришли с обысками к ряду активистов-защитников парка. Несколько человек после обысков задержали[34][35].
2017 год
По состоянию на сентябрь 2017 года противостояние в парке продолжалось в «тлеющем» виде, перейдя в состояние «холодной войны»[36].
По информации на конец октября 2017 года, участок в парке должен быть освобождён, как только подрядной строительной организации будет выдано разрешение на возведение храма на новом участке; вопрос увязан с разработкой проектной документации, которая предположительно должна была завершиться в первой декаде ноября[21].
2018 год
5 апреля 2018 года Комитетом государственного строительного надзора города Москвы застройщику - Религиозной организации «Финансово-хозяйственное управление Русской Православной церкви (Московский Патриархат)» оформлено разрешение на строительство № 77-151000-016746-2018 объекта «Храмовый комплекс» по адресу: Москва, СВАО, Лосиноостровский, Анадырский пр., вл. 8 (участок 2) сроком действия до 05.01.2019[37].
Однако в нарушении ранее принятых договорённостей на конец июня 2018 ФХУ РПЦ участок в парке «Торфянка» не освободило[38][39].
На середину августа 2018 взятые на себя обязательства освободить парк после получения разрешения на строительство храма на альтернативном участке РПЦ по прежнему не выполнила[40].
Планы и реализация
Отчуждение парковой территории
Согласно обнародованному в июне 2016 года заявлению муниципального депутата Марины Овчинниковой, примерно 0,3 гектара парковой территории планируется отрезать под дорожное строительство[41]. Согласно протоколу заседания окружной комиссии, территория разработки находится в пределах линий действующей улично-дорожной сети. Тем не менее, изменение проекта межевания, которое предусматривало, в том числе, строительство дороги по юго-западной окраине парка, встретило резкую критику жителей и собственников жилья. Звучали аргументы, что новая дорога затруднит доступ в парк, ухудшит условия проживания и создаст опасность для детей. В особенно эмоциональных отзывах идея проектируемого проезда была названа «глупой, безобразной и антигуманной», которая «могла возникнуть только в воспалённом мозгу». Несмотря на это, окружная комиссия рекомендовала одобрить проект с учетом предложений и замечаний[6].
Планируемая реконструкция
По информации на февраль 2018 года, на территории парка запланирована масштабная реконструкция, которая предусматривает создание маршрутов для бега и спортивной ходьбы, устройство детских и спортивных площадок, установку скамеек и указателей, ремонт пешеходных дорожек и настилов у пруда, а также вырубку засохших насаждений, высадку новых деревьев и кустарников, разбивку клумб и установку домиков для птиц. Бюджет проекта составляет почти 3 млн рублей[7].
Концепция благоустройства парка вынесена на обсуждение в систему «Активный гражданин»[42]. Представленный на обсуждение проект породил в апреле 2018 года новую волну критики. Разногласия вызывает поклонный крест, появившийся в проекте вместо официально объявленной новогодней ёлки, а также нарушения в ходе процедуры голосования (в частности, блокировка голосов жителей в течение суток)[8]. Голосовать за сохранение в парке креста призывал, в частности, официальный сайт прихода храма преподобного Серафима Саровского в Раеве[43].
Весной-летом 2019 парк Торфянка всё-таки благоустроили. Благоустроительные работы проходили с многочисленными нарушениями. Так капитальный ремонт пруда Торфянка выполнялся с февраля по июнь 2019 до проведения закупки и заключения контракта на соответствующие работы. Кроме того было принято и оплачено фактически невыполненных работ по благоустройству парковой территории на сумму более 8 млн. руб.[44]
После реконструкции
В 2019 году парк открылся после реконструкции по программе «Мой район»[45]. Вокруг пруда Торфянка обновлена набережная – в западной части располагается амфитеатр с полукруглой перголой и сцена на воде, а на северной стороне пруда находится пирс и смотровая площадка с шезлонгами. Для досуга в парке есть три детские площадки для разных возрастов, воркаут-зоны с тренажерами и турниками, столы для игры в настольный теннис и шахматы и проложена специальная тропа для занятия скандинавской ходьбой. Для владельцев домашних питомцев в зоне отдыха находится площадка для выгула со снарядами для дрессировки. В октябре 2019 года в «Торфянке» установили арт-объект – бронзовую скульптуру лося, символ района Лосиноостровский[46].
Набережная пруда Торфянка
Амфитеатр
Детская площадка
Столы для настольного тенниса
Шахматные столы
См. также
Пояснения
- 1 2 См. раздел Официальный статус.
- ↑ Площадь парка составляет 16,6 га, как указано выше. Получаем: 1,2 % ≈ (0,2/16,6) × 100 %.
Примечания
- 1 2 3 4 5 6 7 8 9 10 Правительство Москвы.Постановление от 30 апреля 2013 г. № 280-ПП (с приложениями)
- 1 2 3 4 5 6 7 8 Парк Торфянка. Дата обращения: 8 августа 2015. Архивировано 21 июля 2015 года.
- ↑ Наталья Лужнова. Сквер на Изумрудной станет точкой притяжения жителей СВАО Архивная копия от 28 ноября 2017 на Wayback Machine // Наша Лосинка, 24 ноября 2017 г.
- 1 2 Префект Валерий Виноградов в течение двух часов общался по прямой линии с жителями округа Архивная копия от 15 января 2018 на Wayback Machine // Префектура Северо-Восточного административного округа, 18.11.2017.
- ↑ Москвичи продолжают неравную борьбу с чиновниками и РПЦ за парк «Торфянка». ИА REGNUM. Дата обращения: 15 августа 2021. Архивировано 27 января 2021 года.
- 1 2 Публичные слушания — проект межевания территории квартала, ограниченного улицей Летчика Бабушкина, проектируемым проездом № 345, Изумрудной улицей и внутриквартальным проездом. Дата обращения: 4 июня 2018. Архивировано 11 мая 2018 года.
- 1 2 В Москве реконструируют парк «Торфянка» Архивная копия от 14 февраля 2018 на Wayback Machine // РосТендер, 12.02.2018.
- 1 2 Торфянка: новый скандал Архивная копия от 11 апреля 2018 на Wayback Machine // Московский городской комитет КПРФ, о6.04.2018.
- ↑ Ким Е. А., Клочкова Д. В., Парк «Торфянка» в Лосиноостровском районе Архивная копия от 12 сентября 2017 на Wayback Machine // «Узнай Москву».
- 1 2 Торфянка Архивная копия от 4 ноября 2016 на Wayback Machine // Парки Москвы.
- 1 2 3 4 Парк и пруд «Торфянка». Дата обращения: 8 августа 2015. Архивировано 6 июля 2015 года.
- ↑ ИСТОРИЯ ЛОСИНООСТРОВСКОГО РАЙОНА Архивная копия от 8 апреля 2017 на Wayback Machine // Moscow.org.
- 1 2 3 4 Гагаринский пруд (пруд Торфянка). Дата обращения: 8 августа 2015. Архивировано 7 июля 2015 года.
- 1 2 3 4 Парк Торфянка, пруд Торфянка (Гагаринский пруд). Дата обращения: 12 мая 2017. Архивировано 28 декабря 2016 года.
- ↑ Наталья Лужнова. Жители Лосинки смогут отдохнуть у воды в парке «Торфянка» и на Джамгаровском пруду Архивная копия от 3 июня 2017 на Wayback Machine // «Наша Лосинка», районная Интернет-газета, 23 мая 2017 года.
- ↑ Роман Некрасов. В новом году в СВАО появится еще шесть парков по месту жительства Архивная копия от 12 декабря 2017 на Wayback Machine // Звёздный бульвар, 11.12.2017.
- ↑ Памятный камень в парке Торфянка. Дата обращения: 17 ноября 2017. Архивировано 5 ноября 2017 года.
- ↑ Егор Барков. Осташковская улица Архивная копия от 22 января 2018 на Wayback Machine // Узнай Москву.
- 1 2 В Церкви благодарят полицию за пресечение ночных беспорядков в «Торфянке» и настаивают на праве верующих на храм в этом парке Архивная копия от 4 ноября 2016 на Wayback Machine // Интерфакс-религия, 29 августа 2016 г.
- ↑ Августин Северин. Не сразу храмы строились Архивная копия от 23 июня 2017 на Wayback Machine // Культура, № 21 16-22 июня 2017 г.
- 1 2 Марина Макеева. О чём жители СВАО спрашивали префекта на встрече в Лосинке? Архивная копия от 30 октября 2017 на Wayback Machine // Звёздный бульвар, 27.10.2017.
- ↑ Виктория Миронова. «Ситуация с парком "Торфянка" не разрешилась» // Коммерсант, 22.01.2018. Архивная копия от 16 августа 2019 на Wayback Machine
- 1 2 3 Владислав Мальцев. Храмострой увяз в «Торфянке» Архивная копия от 4 июля 2015 на Wayback Machine // Независимая газета, 01 июля 2015 г.
- 1 2 3 Александр Егорцев. Лосиноостровский «майдан» Архивная копия от 28 июня 2015 на Wayback Machine // Православие и мир, 26 июня 2015 г.
- ↑ Обращение Святейшего Патриарха Кирилла в связи с ситуацией вокруг строительства храма в честь Казанской иконы Божией Матери в Осташковском проезде г. Москвы Архивная копия от 5 августа 2015 на Wayback Machine // Русская Православная Церковь, официальный сайт Московского Патриархата, 24 июня 2015 г.
- ↑ Дарья Менделеева. Торфянка — из зала и около суда Архивная копия от 12 июля 2015 на Wayback Machine // Православие и мир, 07 июля 2015 г.
- ↑ Судебное дело о строительстве храма в парке «Торфянка» прекращено по ходатайству истцов Архивная копия от 13 августа 2015 на Wayback Machine // Православие и мир, 31 июня 2015 г.
- ↑ Александр Егорцев. Противники строительства храма на Торфянке в суде «потеряли интерес» Архивная копия от 3 августа 2015 на Wayback Machine // Православие и мир, 01 августа 2015 г.
- ↑ Церковь готова рассмотреть возможность строительства храма на «Торфянке» в другом месте Архивная копия от 2 августа 2015 на Wayback Machine // Православие и мир, 31 июня 2015 г.
- ↑ Жители Лосиноостровского района смогут высказаться о строительстве храма в «Торфянке» Архивировано 23 декабря 2015 года. // Интерфакс-Недвижимость, 3 августа 2015 г.
- ↑ Москвичам предложили на выбор три участка под храм, строительство которого остановили в «Торфянке» Архивная копия от 6 сентября 2015 на Wayback Machine // Интерфакс-религия, 2 сентября 2015 г.
- ↑ Власти Москвы предоставят новый участок под храм в парке «Торфянка» Архивная копия от 23 декабря 2015 на Wayback Machine // РИА Новости, 9 октября 2015 г.
- ↑ Администрация МО Лосиноостровский. Отчёт главы управы Лосиноостровского района города Москвы П.П. Литовченко "О результатах деятельности управы района за 2016 год". Официальный сайт совета депутатов МО Лосиноостровский (26 января 2017). Дата обращения: 30 июня 2018. Архивировано 30 июня 2018 года.
- ↑ К защитникам парка "Торфянка" пришли с обысками и задержали. BBC News Русская служба. Архивировано 14 августа 2022. Дата обращения: 14 августа 2022.
- ↑ Защитниками парка "Торфянка" занялись СК и ОМОН. BBC News Русская служба. Архивировано 28 июня 2022. Дата обращения: 14 августа 2022.
- ↑ Любовь Кулябко, Дарья Тюкова. Не «Матильдой» единой: православные активисты продолжают акции в Москве Архивная копия от 13 мая 2018 на Wayback Machine // Московский комсомолец, 26.09.2017.
- ↑ Комитет государственного строительного надзора города Москвы. Оформленные разрешения на строительство в 2018 году. Официальный сайт мосгосстройнадзора (11 января 2018). Дата обращения: 30 июня 2018. Архивировано 30 июня 2018 года.
- ↑ Администрация МО Лосиноостровский. О признании обращения депутата Совета депутатов муниципального округа Лосиноостровский Н.Н. Федоровой депутатским запросом. Официальный сайт совета депутатов МО Лосиноостровский (28 июня 2018). Дата обращения: 30 июня 2018. Архивировано 30 июня 2018 года.
- ↑ ДОКУМЕНТ: Три года противостоянию в парке Торфянка. www.portal-credo.ru. Дата обращения: 1 июля 2018. Архивировано 1 июля 2018 года.
- ↑ Москвичи продолжают неравную борьбу с чиновниками и РПЦ за парк «Торфянка». ИА REGNUM. Архивировано 27 января 2021. Дата обращения: 15 августа 2018.
- ↑ В Торфянке не дают построить храм, но используют часть парка под дорогу Архивная копия от 20 декабря 2016 на Wayback Machine // РИА Новости, 24 июня 2016 г.
- ↑ Ирина Зимина. Активные граждане оценят концепцию благоустройства парка Архивная копия от 6 апреля 2018 на Wayback Machine // Наша Лосинка, 4 апреля 2018 г.
- ↑ Голосование за Поклонный Крест в парке "Торфянка". Дата обращения: 11 апреля 2018. Архивировано 11 апреля 2018 года.
- ↑ Распил на природе: как префекты Собянина наживаются на благоустройстве парков. pasmi.ru. Дата обращения: 5 декабря 2020. Архивировано 4 декабря 2020 года.
- ↑ Парк Торфянка (единая территория от ул. Бабушкина по Осташковскому проезду вдоль ул. Изумрудная. losinka.mos.ru. Дата обращения: 25 января 2021. Архивировано 26 октября 2020 года.
- ↑ Скульптуру бронзового лося установили на главной аллее при входе в парк «Торфянка». svao.mos.ru. Дата обращения: 25 января 2021. Архивировано 26 октября 2020 года.

