Пикильякта
| Археологический комплекс | |
| Пикильякта | |
|---|---|
| кечуа Pikillaqta | |
![]() Руины стен Пикильякты | |
| 13°36′45″ ю. ш. 71°43′02″ з. д. | |
| Страна | государство Уари |
| Область | Куско |
| Основан | не ранее 550 г.[1] |
| Разрушен | не позднее 1100 г.[1] |
| Современная локация |
|
![]() Пикильякта |
|
Пикильякта (кечуа Pikillaqta — «блошиный город», оригинальное название не известно) — руины древнего комплекса в Перу, возведённого индейцами культуры уари около VII века нашей эры. Комплекс является крупнейшим и наиболее сохранившимся из провинциальных центров государства Уари и примечателен своей геометрически строгой планировкой, которую смогли реализовать древние строители, невзирая на сложный рельеф местности. Назначение комплекса неизвестно, но возможно, что он был возведен для проведения церемоний, связанных с андским культом почитания предков. По всей видимости, комплекс так и не был завершен и использовался ограниченно, о чем свидетельствует малое количество археологических находок. Наиболее значимыми среди них являются миниатюрные фигурки, лишь здесь найденные в оригинальном археологическом контексте в неразграбленных «колодцах с приношениями». Пикильякта была организованно покинута и законсервирована уари после IX века одновременно с упадком их государства. К настоящему времени комплекс представляет собой руинированные остатки стен до 12 метров в высоту. Археологический парк «Пикильякта» является объектом национального культурного наследия Перу.
Описание комплекса
.jpg)

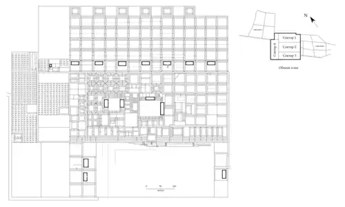
Пикильякта — крупнейший и один из наиболее сохранившихся региональных центров государства Уари[2][3], находится в 27 километрах к юго-востоку от Куско на высоте 3250 метров выше уровня моря. Центральная, наиболее архитектурно сложная, часть комплекса представляет собой в плане прямоугольник размерами 745 на 630 метров. К северной и юго-восточной сторонам основного блока примыкают большие огороженные поля, напоминающие загоны для скота. Эти «загоны» окружены стенами, сохранившиеся остатки которых достигают 10 метров в высоту. Общая площадь комплекса вместе с ними составляет около 2 квадратных километров[4][5]. Геометрическую строгость плана Пикильякты, расположенной на крутом горном склоне с перепадом высот 90 метров, можно рассмотреть лишь с воздуха[6].
Основной архитектурный блок Пикильякты условно разделен на 4 сектора. Стены первого сектора образуют своими пересечениями строгую решетчатую структуру с прямоугольными ячейками стороной от 35 до 40 метров. В большинстве этих ячеек имеются внутренние перегородки, расположенные так, что образуется внутренний дворик-«патио», окруженный длинными узкими помещениями. В некоторых двориках имеются отдельно стоящие «залы с нишами», названные так из-за наличия в их стенах вертикальных прямоугольных углублений-ниш. Оставшиеся пять ячеек представляют собой просто пустые пространства. В этом секторе отсутствуют какие-либо дороги, которые могли бы обеспечить доступ к многочисленным строениям. Сектор плохо сохранился, и лишь несколько фрагментов стен доходят до 2 метров высоты над современным уровнем поверхности[7].
Второй, наиболее структурно сложный сектор Пикильякты, также состоит из множества двориков-«патио» разнообразных размеров и пяти больших «залов с нишами». Через сектор проходят три дороги, одна из которых отделяет его от первого сектора. Эти дороги тем не менее обеспечивают доступ лишь к небольшому числу строений, а большинство найденных дверных проемов в комплексе располагаются только в промежуточных перегородках[8]. Со стороны третьего сектора расположены длинные ряды узких помещений, разделённых стенками. Северо-восточная часть этого сектора, с до сих пор возвышающимися на 12 метров участками стен, сохранилась лучше других[7].
Третий сектор имеет в своем составе всего 12 прямоугольных строений, сгруппированных на противоположных концах большого пустого участка. В 1934 году на остатках древних стен со стороны второго сектора, по всей видимости ошибочно, были реконструированы несколько длинных террас, которые не согласуются с остальной частью комплекса[7].
Четвертый сектор структурно не похож на предыдущие три и состоит из 501 небольшой постройки с дверными проёмами и со скругленными в углах стенами. Эти постройки сгруппированы в ряды и имеют хороший доступ благодаря разделяющим ряды аллеям[7]. Кроме указанных строений в четвертом секторе имеются три небольших «зала с нишами». Оставшуюся половину площади сектора занимают шесть больших пустых участков, огороженных стенами. На юго-западной оконечности сектора найдены остатки погребальных башен «чульпа», возведенных уже в более позднюю эпоху[9].
Исследования показали, что стены Пикильякты сложены в основном из обломков красного песчаника и были обмазаны толстым 10-сантиметровым слоем земляного раствора, а затем облицованы финишным слоем гипсовой штукатурки. Полы в двух- и трёхэтажных зданиях были набраны из бревен не более 8 сантиметров в диаметре, перевязанных веревками, а затем покрыты слоем глиняной обмазки и гипсом. В стенах такие полы могли крепиться как на консольных камнях, так и на непрерывных уступах или в небольших нишах, следы всех этих конструкций обнаружены в остатках стен. Крыши зданий вероятно были соломенными двускатными, хотя не исключен и вариант с плоской кровлей, конструктивно подобной внутренним перекрытиям[10].
С юго-восточной стороны к Пикильякте приводит древняя огороженная дорога, шириной от 4 до 6 метров, ориентированная в направлении врат Румиколька. С противоположной стороны комплекса также имеется аналогичная «дорога» шириной 10 метров, использование которой по прямому назначению маловероятно. Она пересекает два высоких крутых холма и несколько больших скальных обнажений, после чего, в 500 метрах от северо-западной стены Пикильякты, внезапно заканчивается перегородкой. Западная стенка этой «дороги» однако продолжается еще 340 метров[11].
В окрестностях Пикильякты найдены остатки древних каналов, с помощью одного из которых проточная вода из ручья Челке подводилась в центр комплекса с расходом как минимум 850 литров в минуту. Этот канал длиной 16 километров проходил через акведук врат Румиколька и имел подземные участки в пределах основных строений Пикильякты, что свидетельствует о высоком уровне планирования всего строительства. В сечении канал представлял собой перевернутую трапецию высотой 80 см и шириной в верхней, более широкой, части 62 см, а его стенки были сформированы из камней, скрепленных глиной и земляным раствором. На одном из наиболее сложных участков, чтобы обеспечить необходимый уклон канала, строителям пришлось пробить тоннель длиной 5 метров в горной породе и, кроме того, возвести ограждающую стену высотой до 8 метров для защиты от обвала склона[12].
Находки

В поверхностном слое грунта Пикильякты найдено крайне незначительное количество археологических находок для комплекса такого размера, что еще более необычно на фоне других древних поселений долины Куско, изобилующих остатками керамики. До начала 1960-х годов не удавалось даже установить связь между комплексом и культурой Уари, пока она не была выявлена благодаря архитектурному сходству Пикильякты с другими региональными центрами этой культуры [6]. В 1980-х годах за юго-восточной внешней стеной комплекса была обнаружена древняя мусорная куча, раскопки в которой принесли примерно 55 000 осколков керамики и 50 000 костей, принадлежащих, преимущественно, животным из семейства верблюдовых[13]. Следы этой свалки обнаружены ниже фундаментов комплекса, следовательно, по крайней мере частично, она использовалась ещё строителями Пикильякты[14][15].
Первичная классификация и периодизация керамики уари была опубликована в 1964 году на основе результатов раскопок на перуанском побережье и в столице Уари близ Аякучо. В Пикильякте обнаружены девять стилей такой керамики, непосредственно ассоциированной с уари. Большую часть коллекции керамики из Пикильякты (около 60%) составляют осколки глиняной посуды, являющейся местной имитацией стиля «Ocros». Эти изделия среднего качества были изготовлены из оранжевой формовочной массы и, как правило, ангобированы (покрыты) оранжевым шликером средней насыщенности. Среди них найдены осколки принадлежавшие мискам, кувшинам с горлышком и без, кувшинам с горлышком, декорированным в форме человеческого лица, стаканам и различным мелким изделиям, например, ложкам и пряслицам. Из этих форм наиболее распространены миски с прямыми или выпуклыми стенками, декорированные по внутренней поверхности «свисающим» от кромки прямоугольным черно-белым рисунком[16]. Другие 12,7% фрагментов керамики относятся к относительно грубой недекорированной гончарной продукции темно-коричневого или черного цвета, последнее в результате чернения или покрытия черным шликером[17]. Относительно небольшое число керамики (7,2%) принадлежит распространённому в столице Уари стилю «Chakipampa». Это осколки от качественных, тонкостенных изделий в форме мисок и кувшинов, покрытых красным шликером и декорированных в основном шевронным узором или рисунком в виде изогнутых лучей. В отличие от керамики «Ocros», по крайней мере часть этих изделий не производилась на месте, а привозилась в Пикильякту из родных земель Уари[18]. Кроме керамики, имеющей непосредственное отношение к культуре Уари, в Пикильякте обнаружены также осколки изделий (около 10% найденной керамики), отнесенных археологами к местным стилям, что подразумевает некоторую независимость местных культур[19]. Найденная внутри комплекса сервировочная посуда не предназначена для хранения продуктов, а подразумевает использование в церемониальных пиршествах с употреблением традиционного пивного напитка чичи[20][15].
На территории комплекса обнаружено несколько мест с человеческими останками, которые можно отнести ко времени его строительства и использования. Это три скелета в двух могилах, устроенных прямо в юго-западной внешней стене сектора 3 и десять черепов под полом одной из комнат в секторе 2[21]. Еще один некомплектный скелет без признаков захоронения обнаружен в секторе 4 под завалами рухнувшей стены[22]. В том же секторе найдено некоторое количество отдельных человеческих костей, часть из которых со следами сожжения обнаружена в остатках костровищ[23]. Несколько из найденных черепов имеют признаки искусственной деформации, что было не редкостью в Андах. Из-за малого числа исследованных захоронений уари в Перу, нельзя сказать что-либо определенное о значении найденных останков и способах их погребения[24].
Наиболее примечательные находки были обнаружены в неразграбленных колодцах с подношениями. В 1927 году так были найдены два набора по 40 бирюзовых каменных фигурок в каждом. Фигурки представляли собой изображения людей в разнообразных одеждах с уникальными для каждой фигурки диспропорционально увеличенными чертами лица, а одна из фигурок изображала пленника со связанными за спиной руками. Интересной особенностью наборов является то, что 20 фигурок из одного набора являются точной копией 20 фигурок из другого. Фигурки были извлечены местными жителями, и описание археологического контекста в котором они находились было опубликовано только в 1933 году. Оба набора, по описанию нашедших[25], находились в одном и том же помещении в двух рядом расположенных тайниках, которые, кроме фигурок, содержали также раковины морских моллюсков и бронзовые стержни. Один набор фигурок сейчас находится в Мадридском музее Америки, а второй в Национальном университете Сан-Антонио Абад[26][27][28].
В 2004 году при расчистке от обломков дороги, разделяющей первый и второй сектора Пикильякты, был обнаружен запечатанный ещё в древности колодец. Этот колодец диаметром 84 см и исходной глубиной 3,19 метра имел, по всей видимости, церемониальное значение и был устроен следующим образом. В дно колодца был вбит и затем засыпан землей заострённый бронзовый стержень длиной 41 см. После чего на выровненной площадке над стержнем, на глубине 2,79 метра, находился свёрток, содержащий 50 разнообразных фигурок. Материал самого свертка не сохранился, и о его наличии можно судить только по компактности расположения обнаруженных фигурок. Как и найденные в 1927 году, фигурки оказались разнообразны по внешнему виду, но, кроме того, также по материалу и способу изготовления. Среди них имелись фигурки из металлической отливки, фигурки, вырезанные из морских раковин, отполированные фигурки из камня, фигурки, собранные из двух чеканных половинок. Все они небольшого размера до 46 мм высотой. Их можно разделить на несколько основных групп: изображающие стоящих людей, связанных пленников, воинов с щитами и топорами, воинов с копьями. На нескольких фигурках видны следы шлифовки «затылочной» части, по видимому представляющие собой ритуальное удаление «волос». Сразу же над слоем земли, содержащим свёрток, находилась измятая перфорированная бронзовая лента, разделяющая колодец на две стороны. По обе стороны ленты лежали литые бронзовые фигурки, несколько большего, чем найденные в свёртке, размера. С одной стороны — фигурки двух воинов уари со щитами и оружием в сопровождении пумы, а напротив, с другой стороны бронзовой ленты, фигурки двух сверхъестественных существ и еще одна пума, судя по всему, являющаяся зеркальным отображением первой. Одно из этих существ похоже на дракона, второе одновременно имеет черты кошачьих и верблюдовых, каждое изображено со своей добычей — телом человека. Через некоторое, возможно продолжительное время, колодец был заполнен землей до глубины 2,2 метра и на образовавшейся поверхности расположился следующий слой находок. Они представляли собой несколько намеренно сломанных морских раковин и фрагменты костей животных, все со следами термических повреждений, что свидетельствует о том, что в колодце был разведён огонь. Наконец, на глубине в 20 см от поверхности, обнаружено множество осколков от разбитого глиняного сосуда. Последнее может означать, что колодец был десакрализирован незадолго до оставления комплекса[29][30]. В 2018 году колодец с аналогичным содержимым был обнаружен в юго-восточной части центральной площади второго сектора[31].
По одной версии эти индивидуализированные фигурки представляли собой великих предков — основателей династии правителей уари, что, однако, не объясняет наличие среди них изображений пленников. По другой версии фигурки могли символизировать собой конкретных представителей завоёванных уари сообществ[32]. Такие фигурки, по верованиям андских народов, заключали в себе душу изображаемого ею человека и становились священным предметом — «уака». Владелец «уака» мог управлять душой и потомками захваченного предка[33]. Неслучайна повторяемость некоторых фигурок, которая могла отражать свойственные андскому мировоззрению дуализм и симметрию. Сопровождавшие фигурки предметы, такие как бронзовые стержни и морские раковины могли обладать собственным символизмом, отсылая к «Божеству с Жезлом» (Staff Deity) и матери воды «Мама Коча». Примитивное исполнение стержней, с другой стороны, может свидетельствовать об их хозяйственном или боевом назначении[25][30].
Назначение и датировка комплекса
Регион Куско не являлся родным для уари, столица которых находилась вблизи современного Аякучо. Начало масштабного освоения уари Куско, как и начало строительства Пикильякты, можно отнести к периоду VII века нашей эры[34]. Трудозатраты только лишь на строительные работы, без учёта обеспечения рабочих-строителей и прочих затрат, оцениваются, как минимум, в 6 миллионов человеко-дней, а при условии полного завершения строительства они превысили бы 7,8 миллиона[35]. Такие вложения демонстрируют, что уари придавали большое значение возведению этого комплекса[36]. Традиционно считалось, что Пикильякта была центром экспансии уари в Куско. Однако раскопки в городке Уаро, расположенном всего в 15—17 километрах далее к юго-востоку, показали, что под ним находятся остатки ещё одного поселения уари. Это поселение, по всей видимости, было гораздо более обжито чем Пикильякта и именно из него осуществлялось управление провинцией, что подчеркивает совершенно особую роль Пикильякты[37][38][39].
Отсутствие письменности среди андских цивилизаций и малое количество археологических находок не позволяют однозначно установить функции строений Пикильякты, которые внешне не вызывают никаких ассоциаций с привычными для современного человека дворцами, амбарами, крепостями или жильём[36]. Ориентирование внутри такого сложного лабиринтообразного комплекса с его 12-метровыми стенами должно было вызывать затруднения, даже если представить, что существовали дверные проёмы, обеспечивавшие доступ во все помещения. Неясно и то как было устроено освещение внутри многочисленных комнат без окон, учитывая что в раскопанных зданиях не обнаружены следы копоти от факелов или свечей[40].
О назначении и функционировании комплекса можно судить лишь исходя из немногочисленных археологических находок и знаний о культурах, существовавших до и после уари. Высказанные теории останутся лишь предположениями, доказать которые проблематично[36]. Так «залы с нишами» могли иметь религиозную функцию, что косвенно подтверждается наличием под их полом колодцев с приношениями. К тому же сочетание скругленных углов и ниш в стенах встречается в строениях более древних андских культур, явно имевших культовое назначение, таких как La Galgada или Moxeke. Схожие строения с нишами, погребениями и приношениями под полом имелись в более поздней культуре чиму. Инки также использовали ниши в своих храмах, например в Ракчи, однако не использовали такой элемент как скруглённые углы[41].
Строениям с «патио» можно приписать несколько функций, однако маловероятно, что они представляли собой жилые кварталы из-за их вложенной структуры и небольших узких неосвещённых помещений. Возможно эти помещения, окружавшие дворики-«патио», были предназначены для хранения каких-либо ценностей, следов которых, тем не менее найдено не было. Закрытость двориков от посторонних глаз, найденные остатки сервировочной посуды и редкостей, таких как морские раковины и бусы из цветных камней и обсидиана могут также свидетельствовать о церемониальном назначении «патио». В них могли проводиться пиршества для высокопоставленных персон уари[42].
Несколько предположений высказано о назначении многочисленных ячеек, расположенных в четвертом секторе Пикильякты. Первоначально считалось, что они могут составлять большой централизованный склад, аналогичный «кулька» инков, но раскопки не подтвердили это. Наличие остатков очагов и небольшого количества бытового мусора также может свидетельствовать об использовании помещений в качестве обычного жилья[43]. Более экзотическая версия основана на дошедшем до нас от первых европейских колонизаторов описании мест почитания предков в андских семейных кланах — «айлью». Такое место, представлявшее собой небольшое жилище, содержало мумию предка какого-либо «айлью», или же связанный с предком священный объект — «уака». Комплекс со множеством таких ячеек в Пикильякте, мог отражать политику уари в объединении большого количества завоеванных ими «айлью» под единой централизованной властью[44].
Исследователи сходятся в том, что известные центры Уари с регулярной планировкой, к которым относят Асангаро, Виракочапампу и Пикильякту, не были густонаселенными поселениями или административными комплексами, а причиной их возведения стала необходимость в организации власти в соответствии с культом почитания предков[45]. Древним андским цивилизациям была присуща сложная система верований, связывавшая умерших предков с живущими родственниками. Мёртвые имели власть над судьбой и благополучием живущих, а те в свою очередь были обязаны почитать мумии своих усопших предков. Место каждого «айлью» в обществе определялось по происхождению от соответствующего предка, поэтому контроль над его мумией или «уака» давал власть над всем родом. Союзы между влиятельными кланами могли заключаться как через брак, усыновление, так и формальное «обнаружение» общего предка. В этой системе грань между ритуалом и административным действием стиралась. Возможно уари стали первой андской цивилизацией, в которой эта система была поставлена в основу государственного управления, что затем было унаследовано инками[46].
В какой-то момент после IX века н. э. деятельность уари в Пикильякте была свёрнута и три из четырёх секторов комплекса так и не были достроены. Прерывание такого масштабного строительства возможно свидетельствует о серьёзном кризисе, возникшем в государстве уари. Оставление Пикильякты тем не менее было не спонтанным, а организованным: все ценности были вынесены, некоторые колодцы с приношениями аккуратно вскрыты, а многочисленные двери замурованы. Через какое-то время после того как комплекс был покинут, во втором секторе вспыхнул серьёзный пожар, вызвавший обрушение перекрытий двух- и трёхэтажных построек[47][48].
Современный статус
Археологический парк «Пикильякта» является объектом национального культурного наследия Перу[49]. На территории парка работает выставочный комплекс[50].
Примечания
- 1 2 McEwan, 2005, с. 147.
- ↑ Березкин Ю.Е. Между общиной и государством. Среднемасштабные общества Нуклеарной Америки и Передней Азии в исторической динамике : [арх. 20 июня 2023]. — СПб. : МАЭ РАН, 2013. — С. 100-104. — 256 с. — ISBN 978-5-88431-222-7.
- ↑ The Wari built environment: landscape and architecture of empire // Wari: Lords of the Ancient Andes : [англ.] / Gordon Mcewan, Patrick Ryan Williams ; Susan E. Bergh. — Cleveland Museum of Art and Thames & Hudson, 2012. — С. 68, 69. — 304 с. — ISBN 978-0500516560.
- ↑ McEwan, 2005, с. 11.
- ↑ Tuni and Tesar, 2011, с. 2.
- 1 2 McEwan, 2005, с. 18.
- 1 2 3 4 McEwan, 2005, с. 13.
- ↑ McEwan, 2005, с. 19.
- ↑ McEwan, 2005, с. 16.
- ↑ McEwan, 2005, с. 68—71.
- ↑ McEwan, 2005, с. 17.
- ↑ McEwan, 2005, с. 19, 88—91.
- ↑ McEwan, 2005, с. 6, 62.
- ↑ McEwan, 2005, с. 60.
- 1 2 Krzysztof Makowski, Miłosz Giersz. El Imperio en debate: hacia nuevas perspectivas en la organización política Wari // Andes. Boletín del Centro de Estudios Precolombinos de la Universidad de Varsovia. — 2016. — Vol. 9. — С. 18. — ISSN 1428-1384.
- ↑ McEwan, 2005, с. 103, 104.
- ↑ McEwan, 2005, p. 106, 107.
- ↑ McEwan, 2005, с. 102, 103, 112.
- ↑ McEwan, 2005, с. 106, 107, 112.
- ↑ McEwan, 2005, p. 109.
- ↑ McEwan, 2005, с. 52.
- ↑ McEwan, 2005, с. 54.
- ↑ McEwan, 2005, с. 57.
- ↑ McEwan, 2005, с. 129.
- 1 2 Wari Figurines // Wari: Lords of the Ancient Andes : [англ.] / Susan E. Bergh. — Cleveland Museum of Art and Thames & Hudson, 2012. — С. 233, 235. — 304 с. — ISBN 978-0500516560.
- ↑ Tuni and Tesar, 2011, с. 29.
- ↑ McEwan, 2005, с. 153.
- ↑ Anita G. Cook. The Stone Ancestors: Idioms of Imperial Attire and Rank among Huari Figurines : [англ.] // Latin American Antiquity. — 1992. — Vol. 3, no. 4 (December). — С. 341-364. — doi:10.2307/971953.
- ↑ Tuni and Tesar, 2011, с. 13—21.
- 1 2 Tuni and Tesar, 2011, с. 31—33.
- ↑ Cusco prehispánico: resultados de nuevas investigaciones arqueológicas : [исп.] / Nino del Solar Velarde, Miriam Aráoz Silva. — Dirección Desconcentrada de Cultura de Cusco - Ministerio de Cultura del Perú, 2019. — P. 110—134. — ISBN 978-612-4375-12-5.
- ↑ Tuni and Tesar, 2011, с. 30.
- ↑ Tuni and Tesar, 2011, с. 33.
- ↑ McEwan, 2005, с. 1, 123.
- ↑ McEwan, 2005, с. 81.
- 1 2 3 McEwan, 2005, с. 148.
- ↑ McEwan, 2005, с. 7, 163.
- ↑ William H. Isbell, Helaine Silverman. Andean Archeology I. Variations in Sociopolitical Organization : [англ.]. — Springer Science + Business Media New York, 2002. — С. 269, 282, 283. — 390 с. — ISBN 978-1-4613-5171-9.
- ↑ Brian S. Bauer, Miriam Araoz Silva, Thomas John Hardy. The Settlement History of the Lucre Basin (Cusco, Peru) // Andean Past. — 2022. — Vol. 13. — С. 157.
- ↑ McEwan, 2005, с. 82, 83.
- ↑ McEwan, 2005, с. 152—158.
- ↑ McEwan, 2005, с. 150—152.
- ↑ Bill Sillar. My State or Yours? Wari “Labor Camps” and The Inka Cult of Viracocha at Raqchi, Cuzco, Peru : [англ.] : [арх. 3 декабря 2022] / Bill Sillar, Emily Dean, Amelia Pérez Trujillo // Latin American Antiquity. — 2013. — Vol. 24, no. 1. — С. 37. — doi:10.7183/1045-6635.24.1.21.
- ↑ McEwan, 2005, с. 158—160.
- ↑ Castillo de Huarmey. El mausoleo imperial wari : [исп.] / Milosz Giersz, Cecilia Pardo. — El Museo de Arte de Lima. — С. 287, 288. — 348 с. — ISBN 978-9972718-40-3.
- ↑ McEwan, 2005, с. 149, 150, 160—164.
- ↑ McEwan, 2005, с. 123.
- ↑ Gordon F. McEwan. Archaeological Investigations at Pikillacta, a Wari Site in Peru : [англ.] // Journal of Field Archaeology. — 1996. — Vol. 23, no. 2. — С. 183, 184. — doi:10.2307/530502.
- ↑ Pikillaqta (исп.). Dirección Desconcentrada de Cultura de Cusco. Дата обращения: 6 января 2023. Архивировано 1 января 2023 года.
- ↑ Sala de Exhibición de Pikillaqta (исп.). Dirección General de Museos. Дата обращения: 6 января 2023. Архивировано 1 января 2023 года.
Литература
- Gordon F. McEwan. Pikillacta. The Wari Empire in Cuzco (англ.). — University of Iowa Press, 2005. — 193 p. — ISBN 0-87745-931-2.
- Carlos A. Arriola Tuni. The Pikillacta 2004 Eastern Gate offering pit : [англ.] / Carlos A. Arriola Tuni, Louis D. Tesar // Ñawpa Pacha: Journal of Andean Archaeology. — 2011. — Vol. 31, no. 1 (June). — doi:10.1179/naw.2011.31.1.1.
Ссылки
- Pikillaqta (англ.). Hidden Architecture (26 июля 2022).
- Extrañas figurillas en una ofrenda ceremonial de la cultura wari (Perú) (исп.). National Geographic (1 февраля 2019). — Статья в National Geographic о находке фигурок в Пикильякте.
- How Inca Mummies Ruled Over the Living (англ.). History (18 октября 2021). — Статья в Histrory о значении мумифицированных предков в империи Инков.
- Bernier, Hélène. Dualism in Andean Art (англ.). The Metropolitan Museum of Art. — Статья Метрополитен-музей о дуализме в андской культуре.
Видео
Самые странные сооружения древнего Перу Ombio Productions
.jpg)
