Опыт Милликена

Фотография установки Милликена. Большой контейнер с моторным маслом обеспечивает постоянную температуру во внутренних камерах. Вверху слева находится распылитель, внизу слева — телескоп для наблюдения[1]. Также для наблюдения можно использовать три окна. Справа сверху находится электрический провод, идущий от батареи

Опыт Милликена, или эксперимент с каплей масла, — важный эксперимент по определению электрического заряда электрона. Он назван в честь американского физика Роберта Эндрюса Милликена, который провёл этот опыт совместно со своим коллегой и соотечественником Харви Флетчером в 1909 году[2][3]. Милликен усовершенствовал его в 1913 году[4] и в 1923 году получил Нобелевскую премию по физике за работы по определению элементарного электрического заряда и по фотоэлектрическому эффекту.

Опыт, по сути, состоял в создании капель масла с помощью распылителя и в наблюдении за их поведением в электрическом поле. Некоторые из капель были электрически заряжены в результате захвата ионов после облучения воздуха рентгеновским излучением, и их вертикальным движением можно было управлять, изменяя значение электрического поля. Измеряя напряженность электрического поля, необходимого для противодействия силе тяжести, и зная массу капель (которую можно вычислить, измерив скорость их свободного падения в воздухе), можно было определить их электрический заряд. Милликен заметил, что эти значения всегда были целыми числами, кратными фиксированной величине, которая стала считаться элементарным зарядом. Полученное значение составило e = −1,5924(17) × 10−19 Кл, что всего на 0,62 % ниже принятого в настоящее время значения e = −1,602… × 10−19 Кл[5].

Предпосылки

В 1896 году британский физик Джозеф Джон Томсон провёл серию экспериментов, которые показали, что катодные лучи на самом деле являются отдельными частицами, а не волнами, атомами или молекулами, как считалось ранее. Томсон сделал оценки отношения заряда электрона к его массе и показал, что оно не зависело от материала катода[6][7].

Роберт Эндрюс Милликен (1923 год)

Как только отношение заряда и массы было определено, проблема, которую требовалось решить, стала очевидной: определить массу и заряд электрона отдельно. Первая попытка определения заряда электрона принадлежит английскому физику Джону Сили Таунсенду, ученику Дж. Дж. Томсона, который опубликовал свой результат в 1897 году. Его эксперимент состоял в измерении двух величин: полного заряда облака водяного пара, образовавшегося при расширении ионизированного газа, и количества капель в облаке. Основная гипотеза состояла в том, что каждая капля конденсируется на одном ионе. Таким образом, деление общего заряда на количество капель (равное количеству ионов) должно было дать значение заряда одной из них. Значение, полученное Таунсендом, в два раза отличается от принятого в настоящее время значения[8].

Этот метод был модифицирован самим Дж. Дж. Томсоном и английским физиком Гарольдом Уилсоном (1874—1964). Уилсон добавил металлические пластины ниже и выше облака капель, чтобы их можно было заряжать электрически и создавать однородное вертикальное электрическое поле в пространстве, занимаемом облаком. Скорость падения облака измерялась в зависимости от электрического поля, и он смог вычислить величину заряда из уравнения для силы, предполагая справедливость закона Стокса[9].

Американский физик Роберт Э. Милликен заинтересовался проблемой определения заряда электрона во время годичного пребывания в Европе в 1895 году. В октябре он посетил в Берлине серию лекций Макса Планка по теоретической физике о катодных лучах. Вернувшись в США в 1896 году, он работал ассистентом Альберта Абрахама Майкельсона в Чикагском университете. В следующем году Дж. Дж. Томсон определил корпускулярную природу катодных лучей. В 1906 году Милликен решил усовершенствовать метод Уилсона, используя более мощные батареи с напряжением до 4000 В, для создания более интенсивного электрического поля между пластинами, разделёнными 5 мм промежутком. Работая со своим докторантом Луи Бегеманом (1865—1958), они получили более точные значения (Бегеман приводит значение для заряда электрона −1,557 · 10−19 Кл в своей докторской диссертации)[10][11].

Эксперимент

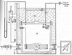
Схема устройства. A — распылитель, B — электрическая батарея, C — переключатели, D — распылительная камера, G — ёмкость с моторным маслом, M и N — пластины конденсатора, между которыми создаётся электрическое поле, X — источник рентгеновских лучей, g — два окна, m — манометр, a — телескоп, а w и d — вода и раствор хлорида меди (II) для поглощения рентгеновских лучей на выходе

В 1909 году Харви Флетчер (1884—1981) стал докторантом Милликена, который предложил ему подготовить эксперимент по определению заряда электрона в качестве темы работы. По словам Флетчера, заметив, что капли воды испаряются менее чем за две секунды, он предложил использовать другие вещества, обладающие меньшим испарением, — ртуть или масло. Милликен не был согласен с аргументами, но так как это была докторская диссертация Флетчера, он позволил докторанту использовать эту идею. С этого момента Флетчер разработал новую камеру для проведения измерений с маслом того же типа, которое используется для смазки в часах[12]. Сам Милликен в своей автобиографии вспоминает, что идея использовать масло пришла к нему в сентябре 1909 года[1].

По окончании эксперимента Флетчер написал статью, которую Милликен и он должны были опубликовать, но Милликен хотел стать единственным автором, хотя и сослаться на Флетчера как соавтора. Также правила Чикагского университета не позволяли статьям, подписанным более чем одним автором, быть частью докторской диссертации одного из них. Таким образом, Флетчеру пришлось изменить свою диссертацию и представить работу о броуновском движении, в то время как Милликен остался единственным автором опыта с каплей масла[2][13][14][15][16]. В основной статье фамилия Флетчера упомянута несколько раз, Милликен описывает эксперимент, используя местоимение «мы»[17].

Устройство

Открытое устройство

Устройство для опыта с каплями масла состояло из трёх камер. В большой камере находились две другие меньшего размера, и было залито 40 л моторного масла для поддержания постоянной температуры внутри установки с колебаниями всего 0,02 °C. Самая внутренняя камера состояла из двух круглых латунных пластин диаметром 22 см, расположенных горизонтально друг над другом на расстоянии 1,6 см друг от друга. В верхней пластине было небольшое отверстие в центре, и она была заряжена положительно (+); нижняя не имела отверстий и была заряжена отрицательно (). Между этими пластинами создавалось однородное электрическое поле, направленное вниз или вверх, с напряженностью от 3000 до 8000 В/см. Пластины были разделены тремя небольшими кусками изолятора (эбонита), а всё пространство закрыто эбонитовой лентой снаружи[18]. В этой полосе эбонита было три стеклянных окна квадратной формы по 1,5 см с каждой стороны, расположенных под углом 0°, 165° и 180°. Узкий луч света, создаваемый дуговой лампой, проникал через первое окно и выходил через противоположное. 165º окно использовалось для наблюдения с помощью маленького телескопа, расположенного на удалении 61 см от внутренней части камеры[3].

Распылитель, подобный тем, что используется во флаконах для духов[12], создавал маленькие капли масла выше второй камеры, содержащей описанную выше камеру. Капли падали под действием гравитации, и некоторые из них проходили через маленькое игольное отверстие в верхней пластине. Освещение было устроено так, что капля виделась как сияющая[18]. Во время наблюдения за падением капли между пластинами отверстие закрывалось для предотвращения потоков воздуха. В качестве источника излучения использовались рентгеновские лучи или радий (испускающие β-лучи и γ-лучи). Излучение проходило через окно для освещения, что позволяло ионизировать молекулы воздуха (азот или кислород), а ионы, катионы или электроны поглощались каплей масла[3][18].

Схема устройства, использованного в опыте Милликена

Используемая техника

Падение капель масла в воздухе определяется законом Стокса, то есть скорость падения, , обусловлена вязкостью среды (в данном случае воздуха). Эту скорость можно определить, разделив пройденную дистанцию на время падения .

Когда воздух ионизируется, капли поглощают электроны. В отсутствие электрического поля они продолжают падать с той же скоростью, поскольку массы электронов очень малы. Включая электрическое поле между пластинами, падение капли можно остановить, в этом случае уравняв силу тяжести и электростатическую силу, или, если напряженность электрического поля ещё больше увеличится, то можно заставить капли двигаться вверх. Движение вверх, опять же по закону Стокса, представляет собой движение с постоянной скоростью. Одну и ту же каплю можно поднимать и опускать до тех пор, пока она не коснётся одной из пластин, поэтому для одной и той же капли можно провести серию измерений[3][18].

Одним из основных моментов исследования Милликена является то, что капли были заряжены неопределенным количеством электронов, которое он не мог знать заранее. С помощью своих измерений он получал значения различных электрических зарядов, . Милликен правильно предположил, что существует элементарный заряд и его необходимо точнее измерить[18];  — электрический заряд электрона, и он должен был быть наибольшим общим делителем всех рассчитанных зарядов, то есть [3].

Расчёты с каплями

На тело, подчиняющееся закону Стокса, действуют две силы: гравитационная и лобового сопротивления. В тот момент, когда обе силы уравниваются, ускорение тела становится равным нулю, а его скорость — постоянной
Силы, возникающие при подъёме капли масла под действием электрического поля

Милликен использовал закон Стокса, чтобы связать установившуюся скорость падения: капель масла с их электрическим зарядом . Джордж Габриель Стокс (1819—1903) определил силу трения сферических тел, падающих в вязкой среде со скоростью движения , которая представляет собой силу, противодействующую движению, и которая возрастает по мере увеличения скорости, размеров тела и вязкости среды. Уравнение для силы Стокса

где  — радиус падающей сферы,  — вязкость среды[19].

Милликен внёс поправку в это уравнение, потому что его капли были очень маленькими, и соответствующее трение меньше, чем заданное по этому законом, поскольку в течение некоторого времени капли из-за своих малых размеров падают в вакууме. Уравнение Стокса верно для сфер размером более 0,1 см. Исправленная Милликеном формула принимает вид

Капли масла, наблюдаемые в телескопе

при , где  — это средняя длина свободного пробега капель[18][20].

В отсутствие электрического поля капля падает в результате действия гравитационного поля Земли, и замедляется под действием силы трения Стокса . Поскольку сила Стокса пропорциональна скорости, , то она увеличивается, и в какой-то момент сравняется с силой тяжести, , а до тех пор сфера ускоряется, пока не достигнет постоянной скорости падения, : Если электрическое поле включено, то сила заставляющая двигаться каплю вверх с постоянной скоростью  — это сила Кулона, , равная сумме сил, которые препятствуют её подъёму, то есть силе тяжести и силе трения Стокса[18],

и установившаяся скорость капли [21]

Выделение константы из первого уравнения и замены в последнем приводит к

Электрический заряд капли выражается через время падения и время подъёма [22][18]

В случае падения без электрического поля и без учёта поправки к закону Стокса, сделанной Милликеном для упрощения этой демонстрации, можно получить массу капли и её радиус в зависимости от скорости падения , которая получается из пройденного расстояния и потраченного времени

Массу капли также можно связать с плотностью масла , её объемом , радиусом сферы как [20]. Уравнивая два выражения для массы капли, можно сократить радиус в обоих частях равенства, и вычислить его на основе оставшегося выражения

Чтобы рассчитать массу , это выражение для радиуса можно заменить выражением, связывающим массу, плотность и объём

Теперь следует использовать формулу нагрузки

Упрощая, получается формула, которая даёт нагрузку на основе известных значений, измеримых в эксперименте[2]

Некоторые из значений эксперимента Милликена: вязкость воздуха Па·с; плотность масла кг/м3; перемещение см; время падения с. Применяя приведенные выше формулы, для значения массы и радиуса капель получается: кг и м[20].

Величина элементарного заряда e

В выражении заряда Милликен также использовал соображение, что капля масла находится в воздухе, поэтому она испытывает восходящую тягу из-за принципа Архимеда, силы которого учитываются в кажущемся весе

Таким образом получается формула, данная Милликеном, при замене плотности масла для

Значение, полученное в первоначальных экспериментах, проведённых Милликеном и Флетчером в 1911 году, составляло e = 4 891 × 10 −10 Фр = 1,631×10−19 Кл[3], что соответствует разнице в 4,8 % от принятого в настоящее время значения. С усовершенствованиями, внесёнными Милликеном позже, в 1913 году он достиг значения e = 4,774 ± 0,009 · 10−10 Фр = 1,592 ± 0,003·10−19 Кл[4], всего лишь на 0,62 % ниже принятого в настоящее время значения e = 1,602 176 634⋅10−19 Кл[23].

Последствия

Слева направо: В. Нернст, А. Эйнштейн, М. Планк, Р. А. Милликен и М. фон Лауэ в 1931 году
Экспериментальные данные Милликена 1912 года. Значения, опубликованные в 1913 году, и отброшенные значения

Весной 1910 года началась так называемая «электронная битва» между Милликеном и физиком Венского университета Феликсом Эренхафтом (1879—1952). В том же году Эренхафт опубликовал[24] измерения элементарного заряда, выполненные с помощью эксперимента, аналогичного Милликену, но с использованием металлических частиц, и объявившего о существовании всего распределения зарядов меньше, чем заряд электрона. В последующие годы он со студентами продолжал публиковать статьи, указывающие на существование зарядов меньших, чем у электрона, которые они назвали субэлектронами. Это привело к тому, что вопрос о существовании субэлектронов стоял на повестке дня некоторых из самых известных физиков того времени (Макса Планка, Жана Перрена, Альберта Эйнштейна, Арнольда Зоммерфельда, Макса Борна и Эрвина Шрёдингера). Чтобы подкрепить свои результаты, Милликен улучшил эксперимент и провёл новые, более точные измерения, которые подтвердили, что заряд электрона является элементарным зарядом, опубликовав новую статью в 1913 году, в которой он также рассчитал постоянную Авогадро[4]. В 1916 году он опубликовал обширную статью, в которой подробно описал ряд ошибок в экспериментальной методике, использованной Эренхафтом[25]. Научное сообщество в значительной степени встало на сторону Милликена (Э. Варбург, Г. Рубенс, В. Вин, Ж. Перрен и А. Эйнштейн уже сделали это на Сольвеевской конференции 1911 года) и его регулярно номинировали на Нобелевскую премию по физике с 1916 года до присуждения в 1923 году за его работы по определению элементарного электрического заряда и фотоэффект[26].

Некоторое противоречие в исходных данных Милликена нашёл историк Джеральд Холтон (1978), который указал, что учёный записал в свой журнал больше измерений, чем включил в свой окончательный анализ. Холтон предположил, что эти точки данных не были включены в большой набор капель масла, измеренных в его экспериментах, без видимой причины. Это утверждение было оспорено Алланом Франклином, экспериментатором по физике высоких энергий и философом науки из Университета Колорадо[27]. В лабораторных журналах Милликена было обнаружено, что, несмотря на указание в его статье 1913 года, что все капли, которые он изучал в течение девяти недель эксперимента, были перечислены (с 13 февраля по 16 апреля 1912 года), всего 58, но количество капель, которые он измерил оказалось около 100. Милликен не включил данные о 25 каплях, из-за прерванного эксперимента до его завершения, ещё 17 не использовал, потому что считал, что в его измерениях были ошибки: капли слишком большие, засорение манометра пузырьком воздуха, конвекционные помехи, ошибки секундомера или неисправность форсунки (распылителя). С другой стороны, Эренхафт, следуя наиболее ортодоксальному научному методу, представил все свои результаты, и нельзя было сделать вывод, что заряд электрона наименьший в природе. Изучение лабораторных журналов Милликена, на рубеже XX века, зародило подозрение в манипулировании данными[14][28][18]. Однако тщательный анализ неопубликованных данных показывает, что Милликен ни в коем случае не исключал данные с намерением манипулировать результатами. Многие из неопубликованных данных, если их использовать, дадут тот же результат, что и опубликованные. Дэвид Гудштейн исследовал оригинальные подробные записные книжки, которые вёл Милликен, и пришёл к выводу, что Милликен прямо заявляет в отчётах, что он включил только капли, прошедшие «полную серию наблюдений», и не исключил ни одной капли из этой группы полных измерений[29][30]. Впрочем, некоторые исследователи критикуют Милликена за многочисленные арифметические ошибки в статье[18].

Эксперимент Милликена как пример психологических эффектов в научной методологии

В приветственной речи, произнесённой в Калифорнийском технологическом институте в 1974 году (и перепечатанной в книге «Вы, конечно, шутите, мистер Фейнман!» в 1985 году, а также в книге «Удовольствие от открытия вещей» в 1999 году), физик Ричард Фейнман отметил[31][32]:

Мы немало научились на собственном опыте, о том, как бороться с некоторыми способами, которыми мы сами себя обманываем. Один пример: Милликен измерил заряд электрона в эксперименте с падающими каплями масла и получил ответ, который, как мы теперь знаем, не совсем правильный. Он немного неточен потому, что Милликен использовал неверное значение вязкости воздуха. Интересно взглянуть на историю измерений заряда электрона после Милликена. Если вы изобразите их как функцию времени, вы обнаружите, что одно немного больше, чем у Милликена, следующее — немного больше прошлого, а следующий за ним — немного больше последнего, пока, наконец, они не успокоились, остановившись на числе, которое ещё больше.

Почему сразу не было открыто, что новое число больше? Учёные стыдятся этой истории, потому что очевидно, что люди вели себя следующим образом: когда они получали число, которое было заметно больше, чем у Милликена, они думали, что что-то не так — и начинали искать и находили причину почему что-то может быть не так. Когда они получили число, близкое к значению Милликена, они не столь усердствовали. И поэтому они удаляли числа, которые слишком сильно отличались, и делали другие подобные вещи …

По состоянию на май 2019 года размер элементарного заряда определён как точная величина, равная e = −1,602 176 634⋅10−19 Кл[23]. До этого с 2014 года принятым значением было[33] (−1,6021766208 ± (98))⋅10−19 Кл, где (98) указывало неопределённость двух последних десятичных знаков. В своей Нобелевской лекции Милликен привёл своё значение для заряда электрона (−4,774 ± (5))⋅10−10 Фр, что равняется (−1,5924 ± (17))⋅10−19 Кл[5].

Проведя рентгеновские эксперименты, Эрик Беклин в 1928 году обнаружил большее значение элементарного заряда, (4,793 ± 0,015)⋅10−10 статКл или (1,5987 ± 0,005)⋅10−19 Кл, что находится в пределах неопределённости точного значения. Раймонд Бирдж, проводя обзор физических констант в 1929 году, заявил: «Исследование Беклина представляет собой новаторскую работу, и вполне вероятно, что как таковое оно содержит различные неожиданные источники систематических ошибок. Если [ … это …] взвешено в соответствии с очевидной вероятной ошибкой […], средневзвешенное значение всё равно будет подозрительно высоким […] автор, наконец, решил отказаться от значения Беклина и использовал взвешенное среднее оставшихся двух значений». Бирдж усреднил результат Милликена и другой, менее точный рентгеновский эксперимент, который подтвердили результаты Милликена[34] . Последующие рентгеновские эксперименты продолжали давать высокие результаты, и предположения об ошибках были исключены экспериментально. Стен фон Фризен измерил значение с помощью нового метода дифракции электронов, и переделанный эксперимент с каплей масла дали бо́льшие числа. К 1937 году стало «совершенно очевидно», что значение Милликена больше не может быть правильным, и установленным значением стало (4,800 ± 0,005)⋅10−10 статКл или (1,6011 ± 0,0017)⋅10−19 Кл[35].

Примечания

  1. 1 2 Perry, 2007, p. 57.
  2. 1 2 3 Millikan, R. A. (1910). The Isolation of an Ion, A Precision Measurement of Its Charge, and the Correction of Stokes's Law. Science. 32 (822): 436–448. JSTOR 1634813.{{cite journal}}: Википедия:Обслуживание CS1 (url-status) (ссылка)
  3. 1 2 3 4 5 6 Millikan, R. A. (1911). The Isolation of an Ion, a Precision Measurement of its Charge, and the Correction of Stokes's Law (PDF). Phys. Rev. 32 (4): 349–397. doi:10.1103/PhysRevSeriesI.32.349. Архивировано (PDF) 13 июля 2019. Дата обращения: 20 апреля 2021.
  4. 1 2 3 Millikan, R. A. (1913). On the Elementary Electrical Charge and the Avogadro Constant. Phys. Rev. 2 (2): 109–143. doi:10.1103/PhysRev.2.109.
  5. 1 2 Robert Millikan. APS Physics. Дата обращения: 26 апреля 2016. Архивировано 24 апреля 2021 года.
  6. Thomson, J. J. (1897). Cathode Rays. Philosophical Magazine. 44: 293–316. Архивировано 30 августа 2019. Дата обращения: 20 апреля 2021.
  7. Serway, R.; Moses, C.; Moyer, C. Modern Physics (англ.). — 3rd ed. — Thomson Brooks Cole, 2005. — P. 108. — 682 p. — ISBN 0534493394.
  8. Townsend, J.S (1897). On Electricity in Gases and the Formation of Clouds in Charged Gases. Proc. Cambridge Phil. Soc. 9: 244–258.
  9. Thomson, G. P. (1965). Harold Albert Wilson 1874-1964. Biographical Memoirs of Fellows of the Royal Society. 11: 186–201. doi:10.1098/rsbm.1965.0013.
  10. Millikan, R. A. (1908). On the Charge Carried by the Negative Ion of an Ionized Gas (PDF). Phys. Rev. 26: 197–198. Архивировано (PDF) 4 ноября 2018. Дата обращения: 20 апреля 2021.
  11. Perry, 2007, p. 56.
  12. 1 2 Schirber, M. (2012). Landmarks - Millikan Measures the Electron's Charge. Physics. 9: 9. doi:10.1103/Physics.5.9.
  13. Fletcher, H. (1982). My work with Millikan on the oildrop experiment (PDF). Phys. Today. 35 (6): 43–47. doi:10.1063/1.2915126. Архивировано из оригинала (PDF) 12 октября 2014. Дата обращения: 20 апреля 2021.
  14. 1 2 Trocchio, Federico Di. Las mentiras de la ciencia: porqué y cómo engañan los científicos?. — Grupo Anaya Comercial, 1998. — 469 с. — ISBN 8420639885. Архивировано 11 июня 2021 года.
  15. Perry, 2007, p. 58—59.
  16. Radioactivity, 2016, p. 186.
  17. Perry, 2007, p. 59.
  18. 1 2 3 4 5 6 7 8 9 10 Tutubalin et al., 2016.
  19. Tutubalin, Valeriy; Barabasheva, Yulia; Devyatkova, Galina; Uger Elena. The Millikan experiment from the point of view of mathematical statistics = Измерения Милликеном заряда электрона и математическая статистика // Вопросы Истории Естествознания и Техники. — 2016. Т. 37. С. 233—250. Архивировано 25 мая 2021 года.
  20. 1 2 3 Serway, Moses & Moyer, 2005, p. 118.
  21. Serway, Moses & Moyer, 2005, p. 115.
  22. Radioactivity, 2016, p. 184.
  23. 1 2 9th edition of the SI Brochure. BIPM (2019). Дата обращения: 20 мая 2019. Архивировано 19 апреля 2021 года.
  24. Ehrenhaft, F. (1910). Über die Messung von Elektrizitätsmengen, die kleiner zu sein scheinen als die Ladung des einwertigen Wasserstoffions oder Elektrons und von dessen Vielfachen abweichen. Kais. Akad. Wiss. Wien, Sitzber. math.-nat. Kl. (IIa) S. 119: 815–867.
  25. Millikan, R. A. (1916). The existence of a subelectron? (PDF). Physical Review. 8: 595–625. Архивировано (PDF) 23 сентября 2020. Дата обращения: 20 апреля 2021.
  26. The Nobel Prize in Physics 1923. Nobelprize.org. Nobel Media AB 2014. Дата обращения: Dimecres, 6 gener 2015. Архивировано 29 июля 2018 года.
  27. Franklin, A. (1997). Millikan's Oil-Drop Experiments. The Chemical Educator. 2 (1): 1–14. doi:10.1007/s00897970102a.
  28. Niaz, Mansoor. Innovating Science Teacher Education: A History and Philosophy of Science Perspective. — Routledge, 2010. — 240 с. — ISBN 9781136941955. Архивировано 11 июня 2021 года.
  29. Goodstein, D. (2000). In defense of Robert Andrews Millikan (PDF). Engineering and Science. 63 (4). Pasadena, California: Caltech Office of Public Relations: 30–38. Архивировано (PDF) 29 апреля 2021. Дата обращения: 25 апреля 2021.
  30. Goodstein, David (2001). In Defense of Robert Andrews Millikan. American Scientist. 89 (1): 54. Bibcode:2001AmSci..89...54G. doi:10.1511/2001.1.54.
  31. Cargo Cult Science. California Institute of Technology. Дата обращения: 22 февраля 2018. Архивировано 17 апреля 2021 года. (adapted from the 1974 California Institute of Technology Архивная копия от 25 апреля 2021 на Wayback Machine commencement address), Donald Simanek’s Pages Архивная копия от 5 июня 2021 на Wayback Machine, Lock Haven University Архивная копия от 24 апреля 2021 на Wayback Machine, rev. December 2017.
  32. Feynman, Richard Phillips. "Surely you're joking, Mr. Feynman!": adventures of a curious character / Richard Phillips Feynman, Ralph Leighton, Edward Hutchings. — New York : W. W. Norton & Company, 1997-04-01. — P. 342. — ISBN 978-0-393-31604-9. Архивная копия от 1 января 2014 на Wayback Machine
  33. 2014 CODATA Values: Older values of the constants. The NIST Reference on Constants, Units, and Uncertainty. NIST (25 июня 2015). Дата обращения: 19 августа 2019. Архивировано 16 июня 2019 года.
  34. Birge, Raymond T. (1 июля 1929). Probable Values of the General Physical Constants. Reviews of Modern Physics. 1 (1): 1–73. Bibcode:1929RvMP....1....1B. doi:10.1103/revmodphys.1.1.
  35. von Friesen, Sten (June 1937). On the values of fundamental atomic constants. Proceedings of the Royal Society of London. Series A, Mathematical and Physical Sciences. 160 (902): 424–440. Bibcode:1937RSPSA.160..424V. doi:10.1098/rspa.1937.0118. Архивировано 5 января 2023. Дата обращения: 6 февраля 2023.

Ссылки