Пальмский собор
| Пальмский собор | |
|---|---|
| |
| 39°34′03″ с. ш. 2°38′53″ в. д. | |
| Тип | католический собор и малая базилика |
| Страна | |
| Местоположение | Пальма[2] |
| Конфессия | католицизм |
| Епархия | Епархия Мальорки |
| Архитектурный стиль | готическая архитектура |
| Дата основания | 1229 |
| Строительство | 1229—1601 годы |
| Состояние | сохранено |
| Сайт | catedraldemallorca.org |
![]() |
|
Кафедральный собор Санта-Мария, также Ла Сеу (исп. Catedral de Santa María de Palma de Mallorca) — готический кафедральный собор епархии Мальорки, расположенный в городе Пальма-де-Мальорка, административном центре Балеарских островов (Испания). В обычной речи называется La Seu, или Sa Seu, — «Епископство».
Строительство собора Ла Сеу началось вскоре после освобождения Мальорки от мавров, в 1230 году по указанию короля Арагона Хайме I, на развалинах находившейся здесь ранее мечети. Продолжено оно было при его сыне, короле Мальорки Хайме II, и в 1302 году было заложено основное здание собора. Оно должно было служить также как усыпальница мальорканских королей — в соборе покоятся останки Хайме II и Хайме III. Строительство было в основном завершено к 1587 году, в 1601 году был окончен главный портал Ла Сеу. В 1882 году были начаты работы на главном фасаде собора, оконченные уже в начале XX столетия. Большой орган был создан мальоркцем Габриэлем Томасом в конце XVIII века (реставрирован в 1993 году).
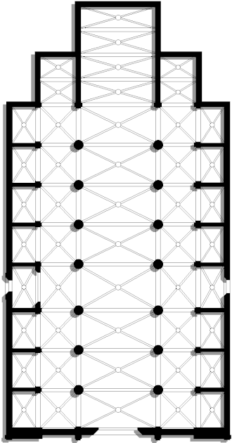
Кафедральный собор Ла Сеу расположен в южной части Пальма-де-Мальорка, недалеко от морского побережья. Он имеет длину в 109,5 метров и ширину в 33 метра, его главный придел — длину в 75,5 метра и ширину в 19,5 метра. В нём 14 колонн высотой в 30 метров каждая. Хоры («Королевская капелла») имеют размеры 34мх16 метров. Здание является одним из крупнейших памятников готической архитектуры Южной Европы. Площадь окна-«розетки», выполненной в форме 6-конечной звезды, составляет 97,5 м², что делает его одной из крупнейших готических розеток в мире. Само окно было выполнено в 1320 году и застеклено в 1599. Построенное в целом в готическом (каталонском и южнофранцузском) и позднеготическом («Портал подаяний») стилях здание несёт на себе также следы более поздних архитектурных влияний — Ренессанса, маньеризма и барокко (последний — капелла «Тела Христова», «св. Себастьяна», «св. Бенедикта» и «св. Мартина» и др.)
По приглашению епископа Мальорки Кампинса в 1904—1914 годах реставрационные и декоративные работы в соборе производил известный каталонский архитектор эпохи модерна Антонио Гауди. В XXI веке в соборе выполнял дизайнерские работы современный мальорканский художник Мигель Барсело (панно в капелле «Всех Святых» и др.).
На первом этаже собора, в помещениях двух капелл и колокольни, размещается соборный музей (с 1932 года).
Дважды в год - 2 февраля и 11 ноября, что совпадает с фестивалями Канделария и Сан-Мартин, соответственно - внутри собора можно увидеть следующее световое явление: солнечный свет проходит через большую розетку, и его отражение проецируется на переднюю стенку, образуя двойную розетку.
Вид с юго-востока
Фасад
Вид на собор из парка «Сады Куарантена»
Собор ночью
Неф- Деталь главного портала
Окно-розетка изнутри
Примечания
- ↑ Wiki Loves Monuments monuments database — 2017.
- 1 2 archINFORM (нем.) — 1994.
Ссылки
На Викискладе есть медиафайлы по теме Ла Сеу- http://www.catedraldemallorca.info Архивная копия от 8 марта 2022 на Wayback Machine

